München
Wohnung

ILIEV IMMOBILIEN: Schön geschnittene und vermietete 3-Zimmerwohnung in SCHWABING / Wartburgplatz

450.000 €

Objektbeschreibung

** IM ALLEINAUFTRAG BIETEN WIR AN **

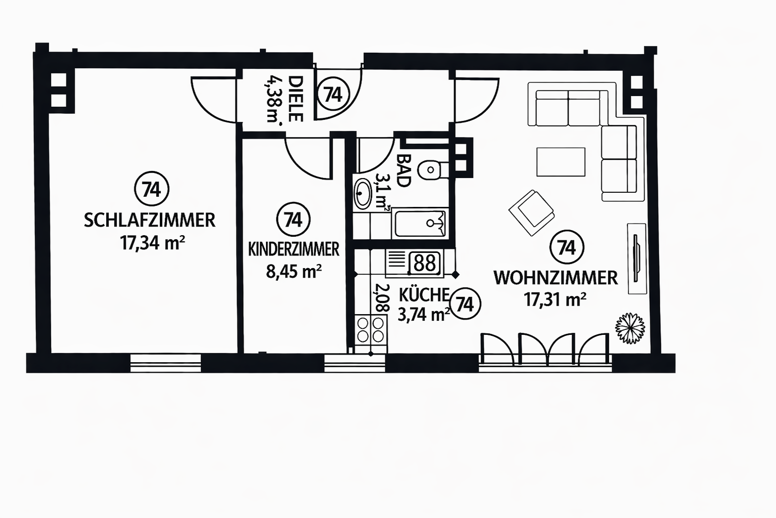
Es wird eine schön geschnittene und vermietete 3-Zimmerwohnung mit französichem Balkon im 3.OG mit Aufzug in München - Schwabing angeboten.

Das Gebäude mit Baujahr 1957 wurde im Jahr 2000 vollständig und umfassend renoviert. Es befindet sich in dementsprechend gutem Zustand.

Die Energieeffizienzklasse: C

Gerne senden wir Ihnen ein Exposé zu.

ILIEV Immobilien offeriert Ihnen dieses Objekt im Exklusivauftrag des Eigentümers. Alle genannten Informationen beruhen auf dessen Angaben.

WIR FREUEN UNS AUF IHRE E-MAIL !

HINWEIS:
Sämtliche Bilder in diesem Exposé sind urheberrechtlich geschützt und dürfen nicht durch Dritte verwendet bzw. weitergegeben werden. Dieses Exposé wurde mit Sorgfalt zusammengestellt. Alle darin enthaltenen Angaben über das Objekt beruhen auf Informationen des Verkäufers. Eine Haftung für deren Richtigkeit und Vollständigkeit können wir nicht übernehmen.

Objektdaten

Ortsangaben
Standort
80804 München
Etage
3 von 5
Flächen
Wohnfläche
ca. 55 m²
Anzahl Zimmer
3
Anzahl Schlafzimmer
2
Anzahl Badezimmer
1
Anzahl Balkon / Terrasse
1
Balkon/Terrassenfläche
ca. m²
Preisangaben
Kaufpreis
450.000 €
Hausgeld
277 €
Provisionspflichtig
Ja
Käuferprovision
3,57% inkl. gesetzliche Mehrwertsteuer
Provisionshinweis
Für den Nachweis bzw. die Vermittlung entsteht eine Käuferprovision von 3,57% inklusive Mehrwertsteuer aus dem Kaufpreis. Wir sind auch provisionspflichtig für den Verkäufer tätig. Diese Gebühr ist bei Vertragsabschluss zur Zahlung fällig. Das Angebot ist vertraulich und nur für Sie bestimmt. Zwischenverkauf und Irrtum müssen wir uns vorbehalten.
Verwaltungsinformationen
Verfügbar ab
nach Vereinbarung
Vermietet
Ja
Kategorie
Objekttyp
Wohnung
Nutzungstyp
Wohnen
Verfügbarkeit
Verfügbar
Vermarktungstyp
Kauf
Zustandsangaben
Baujahr
1957
Zustand
vollständig renoviert

Sie haben eine Immobilie zu verkaufen?

Wir bewerten Ihre Immobilie schnell und kostenfrei!

Weitere Beschreibung

BESICHTIGUNGEN (NUR EINZELTERMINE) WERDEN INDIVIDUEL VEREINBART. SCHREIBEN SIE UNS EINE MAIL.

Balkon
Ja
Ausstattung
Standard
Fliesen
Ja
Personenaufzug
Ja
Garten
Ja
Keller
Ja

Ausstattung

AUSSTATTUNG:

+++ Offene Küche

+++ Französischer Balkon

+++ Vinylboden

+++ Zentralheizung (Gas)

+++ Badezimmer mit Wanne

+++ Schöner Flur

+++ Kabelfernsehen

+++ Waschraum

+++ Aufzug

+++ Fahrradraum

+++ Trockenes Kellerabteil

+++ TG-Stellplatz auf Anfrage zu mieten

Lage

LAGEBESCHREIBUNG:
Das Objekt liegt im Herzen von München, im beliebten Stadtteil Schwabing. Schwabing ist ein lebhaftes Viertel, das für seine kulturelle Vielfalt, seine historischen Gebäude und seine grünen Oasen bekannt ist.

Während Sportbegeisterte durch die zahlreichen Grünflächen rund um den Standort voll auf ihre Kosten kommen, laden Spielplätze und reichlich Sitzgelegenheiten Familien zu Spaziergängen ein. Die Nähe zum Englischen Garten, einem der größten Stadtparks der Welt, ermöglicht zudem Naturerlebnisse und sportliche Aktivitäten in unmittelbarer Umgebung.

Rund um das Objekt befinden sich Wohngebiete, Sterne-Restaurants, trendige Cafés mit vielfältiger Auswahl an kulinarischen Genüssen und Einkaufsmöglichkeiten, angesagten Stores, Galerien und Kinos.

Das Apartment punktet zudem nicht nur mit seiner attraktiven Lage, sondern auch mit seiner unmittelbaren Nähe zu zahlreichen medizinischen Einrichtungen. Innerhalb von nur 5 Autominuten erreichen Sie das angesehene Klinikum Schwabing sowie die renommierte Klinik für Kinderchirurgie und das Notfallzentrum Klinikum Schwabing
Neben dieser idyllischen Wohnatmosphäre besticht dieser Standort gleichzeitig durch seine gute Infrastruktur. Die Bushaltestelle der Linie 59 sowie die Trambahn 23 (Potsdamer Straße) befindet sich in unmittelbarer Nähe, die U-Bahnhaltestelle Dietlindenstraße ist fußläufig in ca. 5 Gehminuten zu erreichen und bietet eine ideale Anbindung an den öffentlichen Nahverkehr. Somit gelangen Sie in nur 15 Minuten zum Hauptbahnhof München oder in nur 45 Minuten an den Flughafen München.
In ca. 10 Autominuten kann das Münchner Stadtzentrum erreicht werden. Ebenso sind alle Autobahnanschlüsse und wichtigen Ringstraßen gut zu erreichen. Bei dieser Wohnlage wird eine äußerst seltene, aber ideale Kombination aus naturverbundenem grünem Wohnen mit hohem Freizeitwert und gleichzeitig zentraler und stadtnaher Lage erreicht.

MÜNCHEN:
München ist die Landeshauptstadt des Freistaates Bayern und zählt ca. 1,5 Mio. Einwohner. Als Weltstadt mit Herz gehört München im internationalen Vergleich zu den führenden Wirtschaftsmetropolen und lockt dadurch viele Unternehmen an. Im Zentrum von München befindet sich die Altstadt mit seinen beeindruckenden historischen Sehenswürdigkeiten und seinen unzähligen kulturellen Veranstaltungen. Gleich drei bekannte Einkaufsstraßen in der Altstadt laden zum Shoppen und Flanieren ein. Ein beliebter kulinarischer Treffpunkt ist der Viktualienmarkt mit seinen Spezialitäten aus Bayern und der ganzen Welt. Bayerische Gemütlichkeit vermittelt das weltberühmte Hofbräuhaus, dass jeder einmal besucht haben muss. Darüber hinaus laden unzählige Straßencafés, urige Wirtshäuser und zahlreiche Biergärten zum Verweilen und Pausieren ein. Nur einen Katzensprung entfernt liegt südöstlich der Stadt der Starnberger See mit seiner Vielfalt an Ausflugsmöglichkeiten im oberbayerischen Alpenvorland.

Ihr Partner

Iliev, Viktor
Nordendstr. 41
80801 München
Energieausweisliegt vor
Energie­ausweistypBedarfsausweis
Gültig bis19.07.2028
PrimärenergieträgerFernwärme
EnergieeffizienzklasseC
Endenergiebedarf93 kWh/(m²·a)
HeizungsartZentralheizung
A+
A
B
C
D
E
F
G
H

Objektanfrage